Park East Place by Alveo Land is a perfect develop,emt situated at 32nd St in Bonifacio Globalc City, Taguig. This lavish condo offers many conveniences to take care of the requirements and wants of its inhabitants. With its 59 actual floors, Park East Place guarantees stunning perspectives on the city horizon, making it a genuinely striking place to call home.
Location
32nd Street, corner 9th Ave, Bonifacio Global City (BGC), Taguig City, 1634 Metro Manila

Gallery


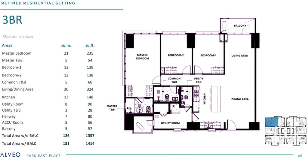
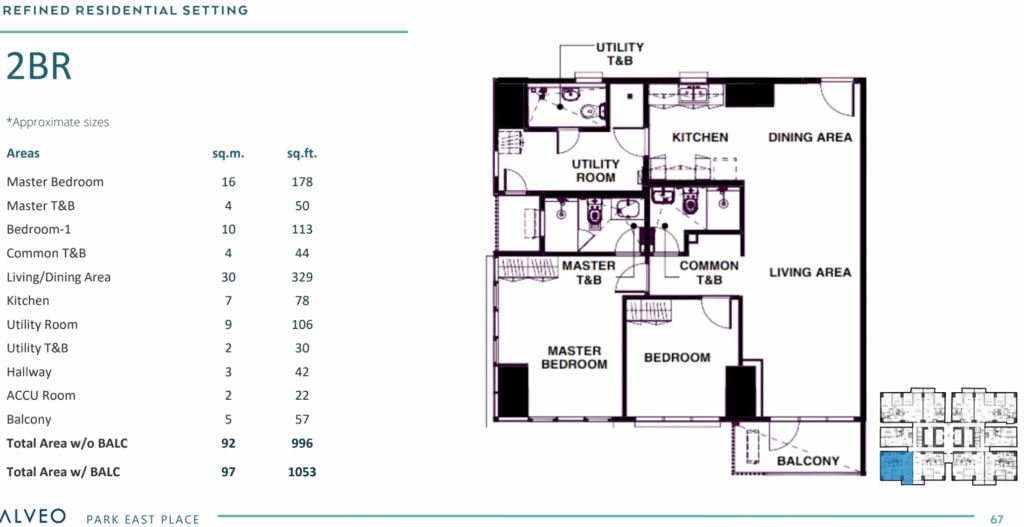
Layouts


ALVEO Corporate Center
728 28th Street, (BGC) Bonifacio Global City
1634 Taguig City, Metro Manila, Philippines




